D71 118 540 Filtr přírubový PN 40
Kód: 050501 050502 050503 000504 050505 050506 050507 050508 050509 050510 050511 Zvolte variantuSouvisející produkty
Detailní popis produktu
POUŽITĺ
K zachycování mechanických nečistot v potrubí, které obsahuje přepravovaná pracovní tekutina. Zajišťuje správnou funkci armatur nebo přístrojů. Pracovní tekutinou mohou být neagresívní kapaliny a pára. Je určen pro pracovní tlaky a teploty:
| Teplota (°C) | Tlak (MPa) |
| 120 | 1,6 |
| 200 | 1,18 |
TECHNICKÝ POPIS
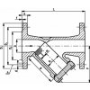
Těleso filtru je odlitek. V šikmém hrdle je opatřeno sítkem (vyměnitelnou vložkou), které je v tělese hrdla upevněno uzavírací zátkou. Plocha otvorů v sítku je cca trojnásobkem plochy příslušné jmenovité světlosti potrubí.
PŘIPOJOVACĺ A STAVEBNĺ ROZMĚRY

MATERIÁL
| Těleso, víko | litina GJL-250 |
| Sítko | korozivzdorná ocel 1.4301 |
| Těsnění | grafit + AISI304 |
ZKOUŠENĺ
Filtr je zkoušen podle ČSN EN 12266-1.
MONTÁŽ
Filtr se montuje do libovolné polohy s podmínkou, že směr proudění média musí souhlasit se směrem šipky na tělese a hrdlo s víkem musí směřovat dolů.
Doplňkové parametry
| Kategorie: | Filtry |
|---|---|
| Medium: | Voda, Neagresivní kapaliny, Pára |




